
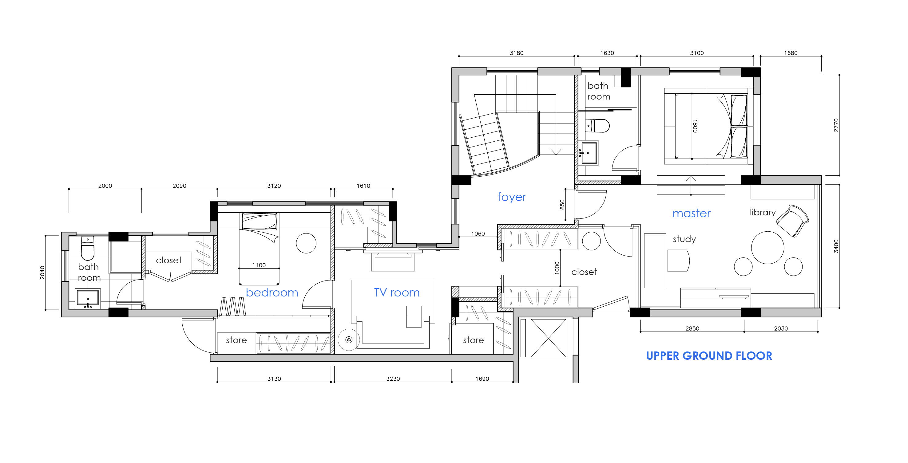
Contemporary style. Very spacious apartment and seek new space planning for the upper floor, namely master and son’s bedroom. About half of the area became the master bedroom. Not only equipped with basic thing like, sleeping bed, bathroom and study, the master bedroom had extra area to put book cases and a small table as play area.




